+34 more
/ 39
+29
$625,000
3 bd
3 ba
2,077 sqft
212 Chestnut Forest Road
Fairview, NC 28730
Active
Property Type
Residential
Year Built
1993
Lot Size
—
Garage
2 spaces
About This Property
Perched high above the surrounding landscape and tucked into more than 8 private acres, this one-of-a-kind modern mountain retreat offers a rare combination of architecturally bold design, energy efficiency, and breathtaking natural beauty. Designed with a striking triangular footprint, the home is thoughtfully positioned to capture panoramic, layered views of the Blue Ridge Mountains from nearly every angle—creating a constantly changing backdrop of light, color, and season for your life.
Surrounded by mature hardwoods, mountain laurel, and rhododendron, the setting feels completely secluded, with no visible neighbors and a true sense of escape. A gated driveway reinforces the property’s privacy making it ideal as a serene full-time residence or lock-and-leave getaway.
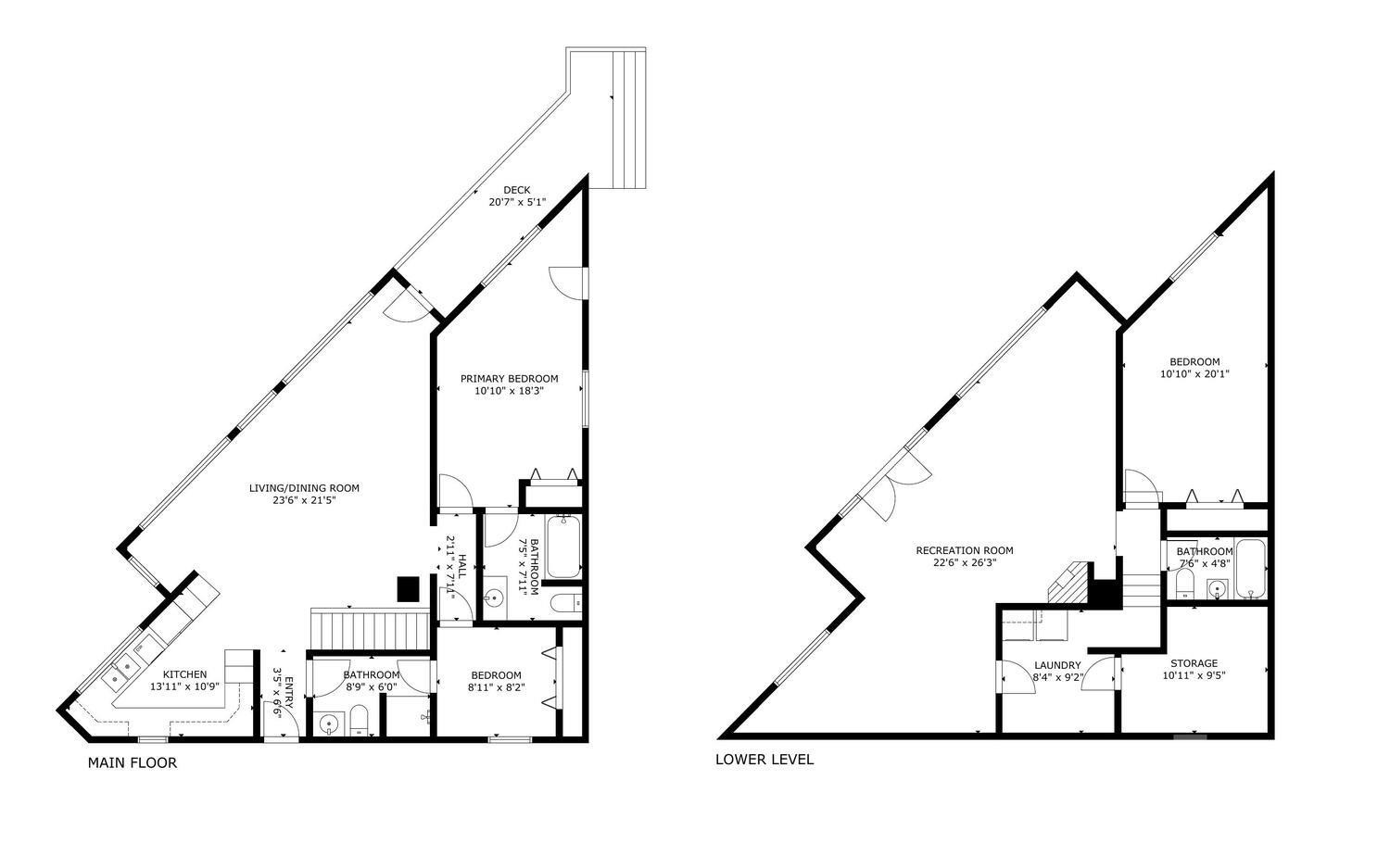
Inside, the home features an open floor plan, cathedral ceilings for natural light, and a dramatically designed geometry. Expansive windows draw the outdoors in, framing long-range mountain vistas and filling the space with morning sunlight, while afternoon shade from the surrounding trees keeps the home naturally cool.
Built with efficiency and sustainability in mind, this passive solar home was built to offer lower utility costs. Features include a Tulikivi soapstone thermal wood stove, energy-efficient gas fireplace, HRV ventilation system, and multiple heating options that blend comfort with performance. Whole house generator.
The main level supports one-level living, while a finished walk-out basement provides flexible space for guests, multi-generational options, and recreation. Thoughtful details such as built-ins, a Murphy bed, hardwood and tile flooring, and a modern kitchen with quality finishes further elevate the home’s livability.
Outdoor living is just as compelling. The deck and viewing vistas take in the unobstructed, long-range mountain views—often described as “above the clouds.” The Fairview Forest acreage itself has a "remote sanctuary" feel, with hiking trails, natural beauty, wildlife protection, with well-maintained roads for your safer winter access.
Located just 24 minutes from Pack Square downtown Asheville. Easy access to Blue Ridge Parkway, Black Mountain, and I-40, this property delivers the rare balance of complete privacy with convenience for dining, culture, and outdoor adventure.
A truly distinctive home—architecturally bold, environmentally thoughtful, and immersed in nature. HOA is at https://www.FairviewForest.com/
Surrounded by mature hardwoods, mountain laurel, and rhododendron, the setting feels completely secluded, with no visible neighbors and a true sense of escape. A gated driveway reinforces the property’s privacy making it ideal as a serene full-time residence or lock-and-leave getaway.
Inside, the home features an open floor plan, cathedral ceilings for natural light, and a dramatically designed geometry. Expansive windows draw the outdoors in, framing long-range mountain vistas and filling the space with morning sunlight, while afternoon shade from the surrounding trees keeps the home naturally cool.
Built with efficiency and sustainability in mind, this passive solar home was built to offer lower utility costs. Features include a Tulikivi soapstone thermal wood stove, energy-efficient gas fireplace, HRV ventilation system, and multiple heating options that blend comfort with performance. Whole house generator.
The main level supports one-level living, while a finished walk-out basement provides flexible space for guests, multi-generational options, and recreation. Thoughtful details such as built-ins, a Murphy bed, hardwood and tile flooring, and a modern kitchen with quality finishes further elevate the home’s livability.
Outdoor living is just as compelling. The deck and viewing vistas take in the unobstructed, long-range mountain views—often described as “above the clouds.” The Fairview Forest acreage itself has a "remote sanctuary" feel, with hiking trails, natural beauty, wildlife protection, with well-maintained roads for your safer winter access.
Located just 24 minutes from Pack Square downtown Asheville. Easy access to Blue Ridge Parkway, Black Mountain, and I-40, this property delivers the rare balance of complete privacy with convenience for dining, culture, and outdoor adventure.
A truly distinctive home—architecturally bold, environmentally thoughtful, and immersed in nature. HOA is at https://www.FairviewForest.com/
Property Details
Interior
- Bedrooms
- 3
- Bathrooms
- 3
- Living Area
- 2,077 sqft
Exterior & Lot
- Year Built
- 1993
- Garage Spaces
- 2
Location
- Subdivision
- Fairview Forest
- County
- Buncombe
- ZIP Code
- 28730
Financial
- Listing Terms
- Cash, Conventional, FHA, VA Loan
- HOA Fee
- $1,300/mo
Utilities
- Utilities
- Electricity Connected, Fiber Optics, Propane
- Sewer
- Septic Installed
Schools
- Elementary
- Fairview
- Middle School
- Cane River
- High School
- AC Reynolds
Interior Features
Built-in Features, Cable Prewire, Open Floorplan
Appliances
Dishwasher, Disposal, Microwave, Oven, Plumbed For Ice Maker, Propane Water Heater, Refrigerator, Washer/Dryer
Patio & Porch Features
Deck, Patio, Rear Porch
Lot Features
Hilly, Paved, Private, Sloped, Wooded, Views
Location
Listing Information
- MLS #
- CAR4372045
- Listing Agent
- Beth Cohen
- Listing Office
- LPT Realty, LLC
- Listed Date
- Apr 21, 2026
Contact Rhonda Moore About This Property
Interested in 212 Chestnut Forest Road? Send us a message and we'll get back to you.